Before

After

| 場所 | 観音寺市 加藤様 |
| 家族構成 | ご夫婦 |
| 工事範囲 | トイレ バスルーム |
| 工事期間 | 1か月半 |
ご依頼内容




こんなになったらいいな
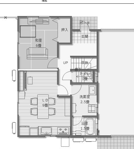
子供たちが成長し、一人暮らしを始めたので夫婦二人の生活になった今。少しゆとりができたので住まいをリフォームしたいな。車庫から雨に濡れずに家に入れる動線を作ってほしいです。
コニーのご提案
洗面化粧台の位置の壁を抜いて入り口を作りましょう

アウトセットタイプの勝手口なら、引き戸も取り付けできます。既存洗面窓は洗面化粧台の位置でパネルを貼ってふさぎます。
洗濯機は車庫の中はどうですか?

脱衣所に勝手口とトイレの入り口ができたので洗濯機を置くスペースが作れません。そこで車庫の一部をデッキにして洗濯機を配置しました。ここなら洗濯した後そのまま干せます。雨の心配もなく干したままお出かけできます。
脱衣に収納タンスを置いたので、洗濯物も取り込んですぐ収納できます。
お風呂もやっぱり引き戸でしょう


ワンディリモデルならタンクレスでも手洗いカウンターが取り付けできます

2段になった下の部分に給排水配管が通っているワンディリモデルタイプ。腰壁にパネルをはり、お掃除もぐんとしやすくなりました。腰上クロスは人気のテラゾー柄。よく探すとムーミンがいます。
リフォーム後
想像以上の仕上がりに大満足です。脱衣の収納ケースも置く場所をプランに取り入れてくれてとても快適です。お片づけが苦手な私ですが、新しい環境をキープしたいと頑張っています。勝手口がとっても使いやすいです。

→


